OFFERS IN EXCESS £1,000,000
BUILDING PLOT WITH PLANNING PERMISSION
MAIN SPECIFICATIONS: A VERY RARE OPPORTUNITY TO PURCHASE AN ABSOLUTELY FABULOUS SECLUDED AND VERY PRIVATE RURAL BESPOKE LUXURY 9.2 ACRE BUILDING PLOT WITH CURRENT PLANNING PERMISSION TO BUILD A 3,500 SQUARE FOOT (292 SQUARE METER) SUBSTANTIAL GRAND DESIGN PREDOMINENTLY SINGLE STOREY CONTEMPORARY RESIDENCE WHICH WOULD HAVE 4 / 5 DOUBLE BEDROOMS * UNDERSTOOD TO ALSO HAVE POTENTIAL TO INCREASE THE PLANNING PERMISSION TO POSSIBLY AS MUCH AS 8,000 SQUARE FEET (380 SQUARE METERS) ARRANGED OVER TWO STOREYS SUBJECT TO FURTHER PLANNING ENHANCEMENTS * ALREADY ENJOYING FABULOUS FAR REACHING RURAL VIEWS * SET AT THE END OF ITS OWN 200 METER TREE LINED PRIVATE DRIVEWAY * ALSO BENEFITTING FROM A 0.75 ACRE LAKE WITH LAKESIDE CABIN / POTETIAL OFFICE * ALSO LOCATED OUTSIDE THE AREA OF OUTSTANDING NATURAL BEAUTY * APPROXIMATELY 2 ACRES OF WOODLAND * TWO FURTHER OUTBUILDINGS THAT HAVE POTENTIAL TO ALSO OBTAIN PLANNING PERMISSION FOR CONVERSION TO HOLIDAY LETTING UNITS / EQUESTRIAN BUILDINGS / WINERY PRODUCTION FACILITIES THAT COULD COMPLIMENT THE 6 ACRES OF SOUTH FACING WELL DRAINED GRASS PADDOCKS THAT ARE CONSIDERED POSSIBLY IDEAL FOR FUTURE WINE PRODUCTION * NO PUBLIC FOOT PATHS OR RIGHTS OF WAY * NO CLOSE NEIGHBOURS * 10 MINUTES FROM BATTLE AND POLEGATE MAINLINE STATIONS *
EXISTING ACCOMMODATION AND DESIGN COMPRISES:
• FOUR LUXURY DOUBLE BEDROOMS, ALL OF WHICH WILL HAVE ENSUITE FACILITIES
• BEDROOMS 1 TO 3 WILL HAVE ENSUITE SHOWER ROOMS
• MAIN BEDROOM ONE WILL HAVE A LARGE LUXURY BATHROOM / SHOWER ROOM AND STAIRS TO FIRST FLOOR ENSUITE DRESSING ROOM AND PRIVATE GROUND FLOOR SUN TERRACE
• ENTRANCE HALL
• CLOAKROOM
• SPLENDID FEATURE OPEN PLAN KITCHEN /
BREAKFAST ROOM / DINING ROOM
• UTILITY / BOOT ROOM
• PLANT ROOM
• FABULOUS OPEN PLAN LIVING ROOM WITH
FEATURE FIREPLACE
• GYM WITH SAUNA AND WET ROOM / ALSO
POTENTIAL BEDROOM FIVE
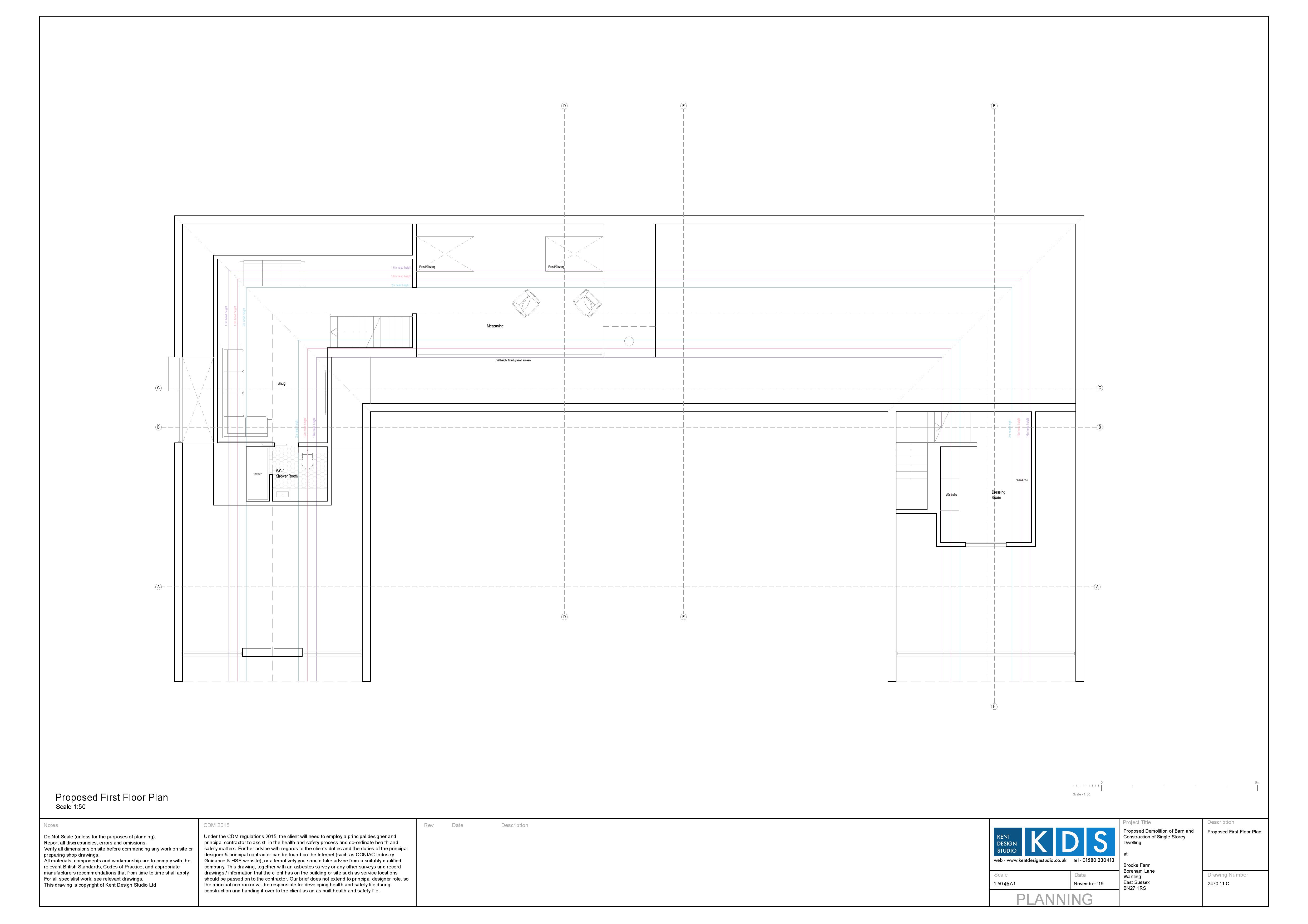
• STAIRS FROM KITCHEN LEADING UP TO CINEMA / FAMILY SNUG ROOM WITH ADJOINING SHOWER ROOM
• LARGE OUTSIDE SOUTH FACING ALFRESCO
DINING AREA
• 200 METER TREE LINED DRIVEWAY LEADING TO THE RESIDENCE THROUGH ITS 9.2 ACRES OF PRIVATE GROUNDS
DESCRIPTION: A considerably rare opportunity to purchase a highly desirable and quite unique secluded rural bespoke building plot of approximately 9.2 acres with the benefit of an existing 0.75 acre lake and with current planning permission to presently build a predominantly single storey grand design circa 3,500 square foot ( 292 square meter) four double bedroom luxury country residence set at the end of its own private 200 meter tree lined driveway in an elevated position with breath-taking far reaching views over the adjoining countryside.
This fabulous building plot has no close neighbours and in addition to the existing 0.75 acre lake, its grounds are also comprised of approximately 6 acres of south facing grassland paddocks, which have been investigated and are considered ideal for possible future wine production, as well as a further 2 acres of established woodland.
Furthermore, there may well be the possibility to further enhance the existing planning permission to create a two storey 8,000 square meter country residence, which although will be located in a very secluded rural and private setting, it is strategically located within only approximately a 10-minute drive of Battle mainline train station, making it perfect for London commuters.
The existing perceived accommodation design will in theory create a wonderful and naturally light spacious four / five double bedroomed bespoke luxurious new grand design imposing contemporary country residence. Each of the four double bedrooms will have ensuite facilities, with the main bedroom suite having a spectacular ensuite bathroom / shower room, as well as a first-...
Read more
OFFERS IN EXCESS £1,000,000
BUILDING PLOT WITH PLANNING PERMISSION
MAIN SPECIFICATIONS: A VERY RARE OPPORTUNITY TO PURCHASE AN ABSOLUTELY FABULOUS SECLUDED AND VERY PRIVATE RURAL BESPOKE LUXURY 9.2 ACRE BUILDING PLOT WITH CURRENT PLANNING PERMISSION TO BUILD A 3,500 SQUARE FOOT (292 SQUARE METER) SUBSTANTIAL GRAND DESIGN PREDOMINENTLY SINGLE STOREY CONTEMPORARY RESIDENCE WHICH WOULD HAVE 4 / 5 DOUBLE BEDROOMS * UNDERSTOOD TO ALSO HAVE POTENTIAL TO INCREASE THE PLANNING PERMISSION TO POSSIBLY AS MUCH AS 8,000 SQUARE FEET (380 SQUARE METERS) ARRANGED OVER TWO STOREYS SUBJECT TO FURTHER PLANNING ENHANCEMENTS * ALREADY ENJOYING FABULOUS FAR REACHING RURAL VIEWS * SET AT THE END OF ITS OWN 200 METER TREE LINED PRIVATE DRIVEWAY * ALSO BENEFITTING FROM A 0.75 ACRE LAKE WITH LAKESIDE CABIN / POTETIAL OFFICE * ALSO LOCATED OUTSIDE THE AREA OF OUTSTANDING NATURAL BEAUTY * APPROXIMATELY 2 ACRES OF WOODLAND * TWO FURTHER OUTBUILDINGS THAT HAVE POTENTIAL TO ALSO OBTAIN PLANNING PERMISSION FOR CONVERSION TO HOLIDAY LETTING UNITS / EQUESTRIAN BUILDINGS / WINERY PRODUCTION FACILITIES THAT COULD COMPLIMENT THE 6 ACRES OF SOUTH FACING WELL DRAINED GRASS PADDOCKS THAT ARE CONSIDERED POSSIBLY IDEAL FOR FUTURE WINE PRODUCTION * NO PUBLIC FOOT PATHS OR RIGHTS OF WAY * NO CLOSE NEIGHBOURS * 10 MINUTES FROM BATTLE AND POLEGATE MAINLINE STATIONS *
EXISTING ACCOMMODATION AND DESIGN COMPRISES:
• FOUR LUXURY DOUBLE BEDROOMS, ALL OF WHICH WILL HAVE ENSUITE FACILITIES
• BEDROOMS 1 TO 3 WILL HAVE ENSUITE SHOWER ROOMS
• MAIN BEDROOM ONE WILL HAVE A LARGE LUXURY BATHROOM / SHOWER ROOM AND STAIRS TO FIRST FLOOR ENSUITE DRESSING ROOM AND PRIVATE GROUND FLOOR SUN TERRACE
• ENTRANCE HALL
• CLOAKROOM
• SPLENDID FEATURE OPEN PLAN KITCHEN /
BREAKFAST ROOM / DINING ROOM
• UTILITY / BOOT ROOM
• PLANT ROOM
• FABULOUS OPEN PLAN LIVING ROOM WITH
FEATURE FIREPLACE
• GYM WITH SAUNA AND WET ROOM / ALSO
POTENTIAL BEDROOM FIVE
• STAIRS FROM KITCHEN LEADING UP TO CINEMA / FAMILY SNUG ROOM WITH ADJOINING SHOWER ROOM
• LARGE OUTSIDE SOUTH FACING ALFRESCO
DINING AREA
• 200 METER TREE LINED DRIVEWAY LEADING TO THE RESIDENCE THROUGH ITS 9.2 ACRES OF PRIVATE GROUNDS
DESCRIPTION: A considerably rare opportunity to purchase a highly desirable and quite unique secluded rural bespoke building plot of approximately 9.2 acres with the benefit of an existing 0.75 acre lake and with current planning permission to presently build a predominantly single storey grand design circa 3,500 square foot ( 292 square meter) four double bedroom luxury country residence set at the end of its own private 200 meter tree lined driveway in an elevated position with breath-taking far reaching views over the adjoining countryside.
This fabulous building plot has no close neighbours and in addition to the existing 0.75 acre lake, its grounds are also comprised of approximately 6 acres of south facing grassland paddocks, which have been investigated and are considered ideal for possible future wine production, as well as a further 2 acres of established woodland.
Furthermore, there may well be the possibility to further enhance the existing planning permission to create a two storey 8,000 square meter country residence, which although will be located in a very secluded rural and private setting, it is strategically located within only approximately a 10-minute drive of Battle mainline train station, making it perfect for London commuters.
The existing perceived accommodation design will in theory create a wonderful and naturally light spacious four / five double bedroomed bespoke luxurious new grand design imposing contemporary country residence. Each of the four double bedrooms will have ensuite facilities, with the main bedroom suite having a spectacular ensuite bathroom / shower room, as well as a first-floor dressing room above. PLEASE NOTE: Potential bedroom five is currently intended to be a gym.
Complimenting the modern design throughout are large glass sliding doors and generous sized windows which perfectly allow the natural flow of light in all the rooms, especially the open plan living room and kitchen / dining room.
Suiting today’s modern expectations of luxury living, there is a combined design for a gym with a sauna and shower room, as well as a first-floor cinema room / family snug with an adjoining ensuite cloakroom / shower room.
Outside, the property will also have the benefit of a large south facing alfresco dining area and stunning rural views rural beyond, which will still be able to be appreciated in the winter from the comfort of inside and with the warmth of the intended feature fireplace dividing the main reception areas.
Depending upon the specification, this bespoke residence could have many of the modern energy efficient systems installed, including ground source heat pumps, solar panels and the incorporation of extensive insulation.
SITUATION: Well, the famous saying of location, location, location in this case is spot on, as this bespoke building plot is located at the end of its own private 200 meter tree lined driveway, which itself is accessed after driving along a quiet country lane that leads off from the picturesque hamlet of Wartling in East Sussex. However, within just 10 minutes you can be on the platform of the mainline train station of Battle and on the way to Charring Cross, making this bespoke building plots position perfect for a London commuter.
ACCOMMODATION: From a gravel driveway and before the garaging complex there will be the ability to enter this fabulous property to the side through a reception hall / side lobby.
RECEPTION HALL: With adjoining cloakroom and doorways leading off to bedrooms 2,3 and 4. , seating area and cupboards for storage of coats and boots etc, further doorway leading open plan kitchen / breakfast room / dining room.
CLOAKROOM: With W.C. and wash basin.
KITCHEN / BREAKFAST ROOM AND OPEN PLAN DINING ROOM: Designed to have a spectacular modern range of contemporary units and fittings with a feature fireplace and large glass sliding doors opening out to the south facing alfresco dining area.
LIVING ROOM: Also adjoining the open plan kitchen / dining room and benefitting from the feature fireplace and southerly views.
UTILITY ROOM: Adjoining the kitchen and with a plant room area beyond and exterior door to outside.
CINEMA ROOM / FAMILY SNUG ROOM: Approached by a staircase leading off from the kitchen / dining room. To comprise of a dual lounge area and cinema room with adjoining cloakroom / shower room.
GYM / POTENTIAL BEDROOM FIVE: A double sized room with an intended installation of both a sauna and shower presently.
BEDROOM ONE SUITE WITH LUXURY BATHROOM / SHOWER ROOM: A double sized room with glass sliding door leading out to a private sun terrace, stairs to first floor dressing room.
BEDROOM TWO: A double sized room with ensuite shower room.
BEDROOM THREE: A double sized room with ensuite shower room.
BEDROOM FOUR: A double sized room with ensuite shower room.
OUTSIDE: Gravel driveway and area to side for garaging complex and courtyard style part enclosed front garden.
Read less